Hi Howard. For pickup ideas/info/chat, I suggest browsing through the "Domestic: Fullsize" vehicle area of the forum. There are a lot of great non-camper-specific info available in that area.
Many great build threads and discussions:
https://expeditionportal.com/forum/forums/domestic-full-size.28/
Like you, I prefer clean sided campers. We also prefer simplicity. For that reason, we never add awnings or a permanent shower cubes on the exterior. It comes down to a personal preference thing as many people love and use both. The awning also depends on the areas and time of year that campers are used. Awnings will be more useful in hot, treeless areas in the summer or areas with long-duration rains compared to the cooler, treed areas we frequent. Awnings often shade the wrong area depending how you park plus, throughout the day the sun moves and the shadow cast by the awning moves often making the shaded area in the wrong place or unusable. Use in the wind is questionable, or you add additional staking/poles. You can't use them if you are parked right next to trees or poles. For us, more weight, more cost, risk of them catching on trees in the tight trails we frequent all add up to awnings/shower enclosures not working for us while they are the cats meow for others in their situations.
We typically find our sitting-shade on the shaded side of the camper, under a tree or in our small 6' x 6' Clam hub-sided screen house. I carry a white tarp and occasionally put that up to block intense sun on the camper and equipment. Since the primary reason I ever deploy the shade-tarp is to shade the camper itself, it can run at a steep angle and shade the camper much better than an awning could when the sun is at any other angle than high noon. We sometimes place bicycles, motorcycles, and other gear behind the tarp, too, to protect from sun and rain. The tarp has also proven useful as sun or rain shelter set up from trees/poles away from the camper.
Another point to consider is that camper awnings are attached to the main body of the camper and not the rooftop and so will not shade the softsides when the top is popped up. When I use our white tarp, I clip to the L-Track at the very top of the camper so it shades the softside as well. With awnings, the sun may be shining from a different angle than what the awning covers unless you intentionally park the rig with the awning side of the camper facing south which may directly work against where you want the window or door to face or the slant of the terrain. I can set up the tarp on either side of the camper, or fold it in half and set up on the rear of the camper, or move it throughout the day rather than having to park the entire rig so a fixed awning is in the right spot to block the sun. Since we rarely need or bother with shading where we frequent, it makes sense to have a $10, 1 pound tarp along for those rare occasions rather than a 50+ pound and $$$ awning. These are just some things for owners to consider and, again, are really dependent on how and where you use your camper. If our use case changes in the future, we'd look at the various 270 degree awning rather than those that deploy straight out, as the coverage of the 270 style is so much better.
No arguing that awnings are useful in some areas. Your considering putting two awnings on your rig would eliminate the typically issue of it always being on the wrong side. That would give your rig a wide area of shade on both sides and, as the sun moved throughout the day, no need to reposition. Would also give a nice wide area protected from rain. Gives you the option of deploying one or the other or, like you mentioned, if the offset is adequate, deploy both at once. If you use the Bush Company, you may be able to have them on the same plane and completely open on and then open the other only until it meets the arm of the other and attach it there. It wouldn't work for rain, but perhaps for sun.
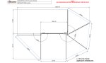
For those unfamiliar, here are diagrams of both the Alu-Cab and The Bush Company to show dimensions (both in mm) and shape, which differ a fair bit.
They are all available in left hand and right hand versions.
Alu-Cab covers 107 sq feet (10 sq meters). Weight: 55 lbs
Bush Company 270 XT covers 86 sq feet (8 sq meters). Weight: 61lbs
Bush Company 270 XT Max covers 129 sq feet (12 sq meters). Weight: 74lbs
