the spare wheels, there is no other option, a 4x4 vehicle does not make sense and penalizing the departure angle, I ruled out the cab option due to weight.Surely your spare wheel only needs to be high enough to clear the departure angle?
How many litres of fresh water, and where will the tank/s be placed? Remember that the front axle load limit is only 2800kg, so it is not good to have them too far forward - in cab-chassis form, there is already 1900kg on the front axle. Because of where I placed my tanks (300ltr - 300kg), there is now 2500kg on the front axle - l should have placed them further back towards, or above, the much higher rated rear axle. Placing the tanks past the rear axle can create different problems, especially road handling issues, as will high mounted spare wheels.
Figure out all your heavy items and work out your layout around them. That's why all the European camper manufacturers that build with Fusos put the lightweight bathroom at the front of the box.
View attachment 818607
I think that an insurance company may see things differently, especially if you have an accident that involves injury to other people or property.I am going to be about 400kg above, here in Spain the truck is weighed by axles but it is added and divided by axles without exceeding the 6500kg, so due to the legal issue I am covered

If you go with the suggested reduced departure angle, you could move your spare lower which would also bring it forward some, helping reduce the C.G. moments in addition to making it much easier for removal. Plus negating the need for the vertical frame supports up the rear wall (weight/work saving)If your Euro-spec Fuso is the same as mine, it probably does not have a low- range transfer case. If you are expecting to 4x4 in terrain where such a steep departure angle is necessary, then a Euro-spec Fuso is probably not the best choice for the base vehicle

I don't know where you're from but here in Spain the MOT regulations are super strict and if you leave with the seal your insurance is valid.I think that an insurance company may see things differently, especially if you have an accident that involves injury to other people or property.
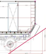
The regulations indicate wheels above 2.00 meters,If you go with the suggested reduced departure angle, you could move your spare lower which would also bring it forward some, helping reduce the C.G. moments in addition to making it much easier for removal. Plus negating the need for the vertical frame supports up the rear wall (weight/work saving)
View attachment 818723
That option penalizes the departure angle.Creo que el corte trasero es una complicación que no aporta ningún valor.
Me desharía de él y bajaría los repuestos hasta la línea roja.
Salud,
Pedro
autocaravana OKA196
This truck is perfectly valid for 4x4 use, but some minimum angles must be respected, this rule is as important as the one you point out regarding weight distribution, thanks for the clarificationIf your Euro-spec Fuso is the same as mine, it probably does not have a low- range transfer case. If you are expecting to 4x4 in terrain where such a steep departure angle is necessary, then a Euro-spec Fuso is probably not the best choice for the base vehicle.
6500kg / 2 axles = 3250 kg. The front axle has been rated at 2800kg for a reason, to prevent overloading and stress which could lead to failure, most likely at the steering knuckle area.
View attachment 818699
Thanks to everything, you learn the positive things, bugs like this go down to Africa, and they go up without problems. I haven't seen a bar of these games yet.Not that it will likely affect you in Spain, but I am pretty sure that a spare tyre setup like that would not survive the rigors of Australian outback travel.
Too much weight up high and too much leverage. It would likely shake itself to pieces if taken on a long corrugated section of road, of which there are many in our country.
That said... the bar seen at the bottom would significantly reduce the amount of departure angle you would have anyway.
At the end of the day, you are building a camper, not a rock crawler, so when it comes to departure angle, saying "the more possible the better" seems illogical to me.
I have about 25 degrees of departure angle on my truck, which I consider more than sufficient, given the terrain that I am likely to take it on, and my truck is a very capable manual 4x4 with low range.
As I have said before... it's your build and you can design it in any way that you see fit.
People like myself are simply giving comments on what we see as potential issues. You can listen to that advice or ignore it; that choice is totally yours.
