Is this for just the Total Composite Box, or including the subframe?
1200 pounds is the camper box with door, fan, and windows.
I didn't weigh the base truck, but based on the generic curb weight, the 4wd conversion (transfer case, front axle), bigger wheels/tires, front winch and bumper adds about 1000 lbs.
The subframe and all the storage boxes, including those mounted on the rear wall, was 750 lbs.
Did you consider/do you know if there is room for the fuel tank where the tank usually goes in the passenger vans (further up on drivers side)? It's hard to tell from photos but seems the tank hangs pretty low. I also see you got the standard size tank, I assume the larger one hangs even lower?
There is some emission control stuff that could likely be relocated plus I think the passenger van fuel tank usually needs to be shortened so that it doesn't interfere with the transfer case. For me, minimal gains for a fair bit of work.
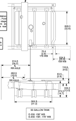
The stock tank does hang down, but as far as departure angle, the overall length of the camper has more effect than the fuel tank.
On the approach to a VERY steep climb, the rear bumper would start to drag before the fuel tank would.
If crawling down a tall, steep rock step the fuel tank might drag but I think that the custom skid plate would protect things as long I was cautious.
The larger fuel tank is longer, but not any lower, and not available on the shorter (138") wheelbase.

And finally, why did you go for a rear pivot vs the typical spring mounts in the rear most expedition campers seem to have? Sorry for all the questions, love the build!
With slightly heavier trucks, the frame is often nice and flat and smooth behind the cab, allowing subframe rails to lay right on top of the frame.
The frame of the E-350 is not flat behind the cab; the frame kicks up 3" over the rear axle plus there are a few rivets, etc along the top surface.
Allowing for this would have likely have raised the camper 3 or 4 inched over the subframe that I used.
Also, I think that with the pivoting rear mount less torque will be transferred to the camper-cab interface.